Поиск новостроек
| Общий рейтинг жк | |
| Оценка посетителей: |
Вовремя мы решились брать квартиру, по этому жк есть много скидок, некоторые из них ...
Дарья Лыскова
эксперт 23Квартиры.ру
ЖК “Друзья” построила строительная компания “Семья”, которой принадлежит огромный жилой комплекс “Светлоград”. Сейчас в центре города также строится комплекс “Все свои”.
Жилой комплекс “Друзья” находится в районе Западного обхода в одной остановке от гипермаркета Лента.
Касательно застройщика — заявленных сроков сдачи никогда не нарушал, всегда все сдается вовремя. В декларации ЖК “Друзья” указан срок сдачи — третий квартал 2024 года, который также будет выполнен. Поэтому покупать и вкладывать деньги в качестве инвестиций безопасно.
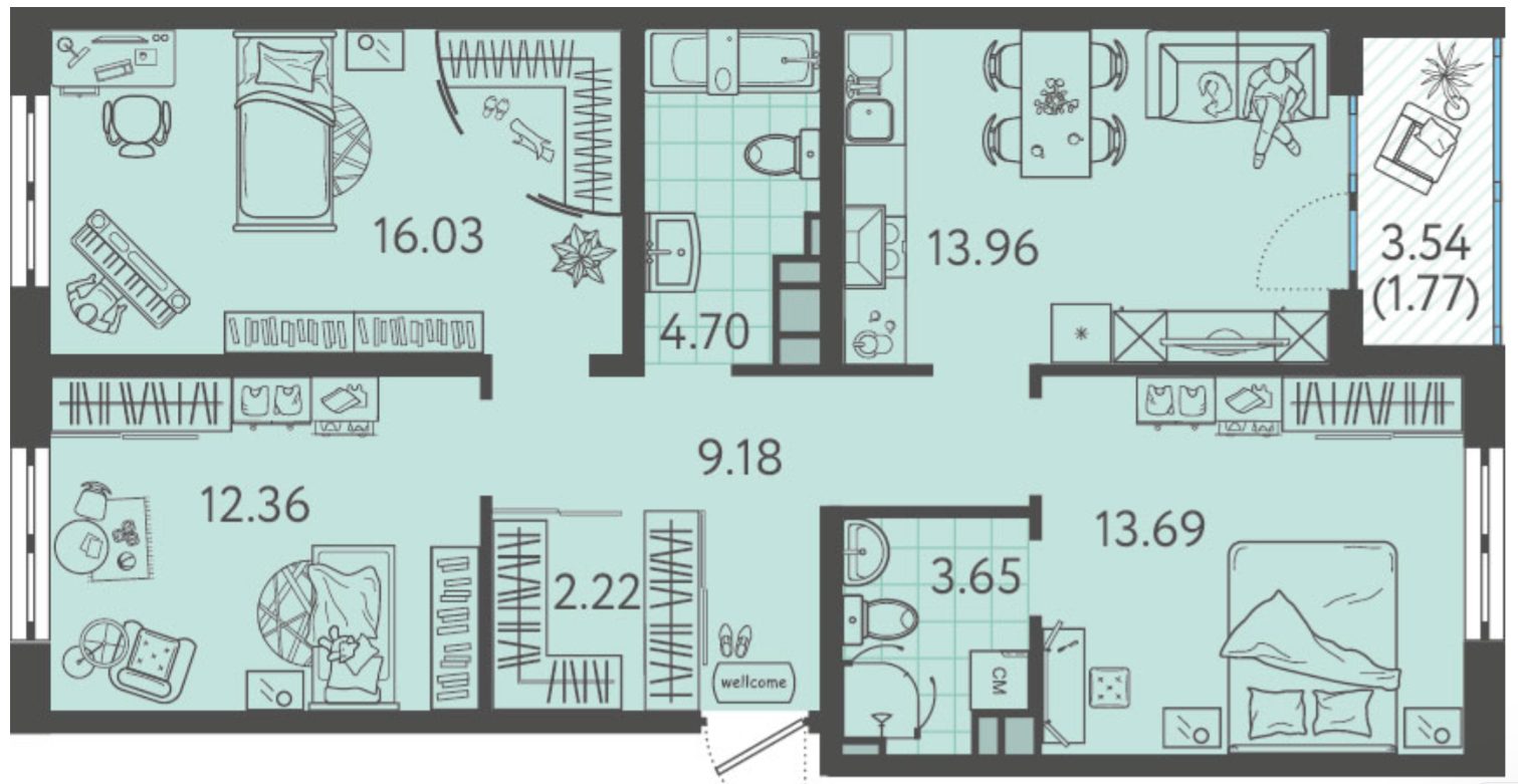
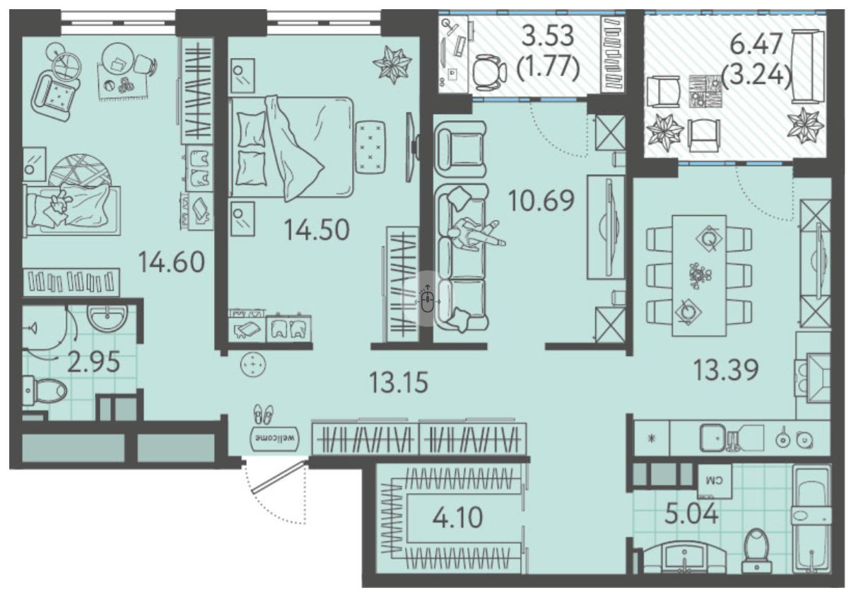
Комплекс представляет из себя три дома конструкции монолит-кирпич, будут квартиры с панорамным остеклением и без нега. Цена по этому ЖК этому комплексу начинается у студий от 2,9 — 3 млн. руб., однокомнатные — от 3,9 — 4 млн.руб.
По периметру с внешней стороны будет обрамляться коммерческими помещениями, вход во двор только для жильцов и без машин. Соответственно дворы безопасные, с детскими и спортивными площадками. Западный обход находится сразу же недалеко от комплекса. Ддля того чтобы перейти на огромную территорию, которая сейчас застраивается ЖК “Самолет” можно воспользоваться удобным воздушным переходом.
Задать вопрос эксперту| Комнат | Площадь | Цена | Планировка | Дополнительно |
| студия | 27.6 / 22.17 м² | от 4 471 200 руб. (162 000 руб./м²) | Планировка | |
| 1 | 35.6 / 12.82 м² | от 5 518 000 руб. (155 000 руб./м²) | Планировка | |
| 1 | 37.0 / 12.07 м² | от 5 402 000 руб. (146 000 руб./м²) | Планировка |
| Комнат | Площадь | Цена | Планировка | Дополнительно |
| студия | 27.5 / 22.40 м² | от 4 297 800 руб. (156 284 руб./м²) | Планировка | |
| 1 | 36.2 / 12.08 м² | от 5 285 200 руб. (146 000 руб./м²) | Планировка | |
| 1 | 37.7 / 12.41 м² | от 5 617 300 руб. (149 000 руб./м²) | Планировка | |
| 2 | 63.95 / 30.49 м² | от 9 656 450 руб. (151 000 руб./м²) | Планировка | |
| 3 | 75.3 / 38.53 м² | от 10 542 000 руб. (140 000 руб./м²) | Планировка | |
| 3 | 77.25 / 42.08 м² | от 9 270 000 руб. (120 000 руб./м²) | Планировка | |
| 3 | 82.45 / 39.79 м² | от 8 657 250 руб. (105 000 руб./м²) | Планировка |
| Комнат | Площадь | Цена | Планировка | Дополнительно |
| студия | 22.35 / 16.38 м² | от 3 531 300 руб. (158 000 руб./м²) | Планировка | |
| студия | 24.15 / 17.88 м² | от 3 815 700 руб. (158 000 руб./м²) | Планировка | |
| студия | 27.6 / 22.13 м² | от 4 250 400 руб. (154 000 руб./м²) | Планировка | |
| 1 | 33.55 / 11.98 м² | от 4 629 900 руб. (138 000 руб./м²) | Планировка | |
| 1 | 35.85 / 12.78 м² | от 4 947 300 руб. (138 000 руб./м²) | Планировка | |
| 1 | 36.05 / 11.98 м² | от 4 974 900 руб. (138 000 руб./м²) | Планировка | |
| 1 | 36.3 / 11.98 м² | от 4 936 800 руб. (136 000 руб./м²) | Планировка | |
| 1 | 36.9 / 12.07 м² | от 5 092 200 руб. (138 000 руб./м²) | Планировка | |
| 1 | 38.25 / 12.08 м² | от 5 125 500 руб. (134 000 руб./м²) | Планировка | |
| 1 | 39.35 / 13.79 м² | от 5 272 900 руб. (134 000 руб./м²) | Планировка |
| Комнат | Площадь | Цена | Планировка | Дополнительно |
| студия | 23.0 / 17.22 м² | от 3 680 000 руб. (160 000 руб./м²) | Планировка | |
| 1 | 37.6 / 12.69 м² | от 5 038 400 руб. (134 000 руб./м²) | Планировка | |
| 2 | 52.75 / 24.12 м² | от 7 596 000 руб. (144 000 руб./м²) | Планировка | |
| 3 | 80.15 / 39.8 м² | от 9 858 450 руб. (123 000 руб./м²) | Планировка | |
| 3 | 81.05 / 39.08 м² | от 9 969 150 руб. (123 000 руб./м²) | Планировка |
| Комнат | Площадь | Цена | Планировка | Дополнительно |
| студия | 22.07 / 15.97 м² | от 3 641 550 руб. (165 000 руб./м²) | Планировка | |
| студия | 22.73 / 16.32 м² | от 3 750 450 руб. (165 000 руб./м²) | Планировка | |
| студия | 27.63 / 22.33 м² | от 4 420 800 руб. (160 000 руб./м²) | Планировка | |
| 1 | 31.68 / 10.48 м² | от 4 625 280 руб. (146 000 руб./м²) | Планировка | |
| 1 | 36.73 / 10.68 м² | от 5 325 850 руб. (145 000 руб./м²) | Планировка | |
| 1 | 37.89 / 12.41 м² | от 5 228 820 руб. (138 000 руб./м²) | Планировка | |
| 1 | 42 / 13.05 м² | от 5 880 000 руб. (140 000 руб./м²) | Планировка | |
| 2 | 60.05 / 27.69 м² | от 7 506 250 руб. (125 000 руб./м²) | Планировка | |
| 3 | 71.33 / 34.3 м² | от 8 559 600 руб. (120 000 руб./м²) | Планировка | |
| 3 | 77.54 / 41.14 м² | от 9 304 800 руб. (120 000 руб./м²) | Планировка |
| Комнат | Площадь | Цена | Планировка | Дополнительно |
| 1 | 36 / 12.78 м² | от 5 040 000 руб. (140 000 руб./м²) | Планировка | |
| 1 | 36.06 / 12.82 м² | от 5 048 400 руб. (140 000 руб./м²) | Планировка | |
| 1 | 36.14 / 11.98 м² | от 5 059 600 руб. (140 000 руб./м²) | Планировка | |
| 2 | 56.1 / 31.56 м² | от 7 124 700 руб. (127 000 руб./м²) | Планировка | |
| 2 | 61.51 / 27.18 м² | от 7 688 750 руб. (125 000 руб./м²) | Планировка |
В состав ЖК «Друзья» включены 2 здания, строящиеся с применением кирпично-монолитной технологии. Проектом предусмотрена улучшенная изоляция, обеспечивающая энергетическую эффективность класса С+. Конструкция фасадов рассчитана на долгосрочное сохранение эстетических и функциональных параметров с учетом климатических особенностей Краснодара.
Покупатель может выбрать студию или квартиру с площадью от 21 до 83 м кв. Крупные застекленные лоджии с шириной до 150 см увеличивают полезный объем. Разнообразие планировочных решений упрощает выбор оптимального варианта.
Застройщик передает жилье в состоянии «предчистовой» отделки. Для оплаты предлагаются типовые программы ипотечного кредитования. Доступно применение материнского капитала.
По генеральному плану 720 машиномест вынесены за пределы двора. В раздел благоустройства включены следующие позиции:
На первом этаже размещены:
Выполнение застройщиком утвержденного плана обеспечит комфортную среду проживания.
Западный обход проложен рядом с ЖК «Друзья». Следует учитывать загруженность этой магистрали в часы пик. Такое расположение обеспечивает удобный проезд:
Размещение зданий комплекса на второй линии жилого массива уменьшает уровень транспортного шума.
На ближайшей остановке можно использовать для поездки маршрутное такси (75), автобусы (140а и 710). В шаговой доступности:
В 10 минутах пешком расположен магазин «Лента», другие торговые объекты.
Строительство объекта ведет компания “Семья”. Застройщик трудится с 2013 года и производит полный цикл работ, от создания проекта до ввода в эксплуатацию комплекса домов. Компания хорошо зарекомендовала себя в Краснодаре, построив на Западном обходе микрорайон “Светлоград” с собственной внутренней инфраструктурой и жилой комплекс “Андерсен” в районе Краевой клинической больницы. В центральном районе идет строительство 2-й очереди ЖК "Все свои".

Надоело жить в старых домах, новостройки гораздо приятнее. Очень рада, что появилась возможность купить однушку в Друзьях. Квартира будет просторная, с большой лоджией. Много надежд возлагаю на усиленную шумоизоляцию. У меня старый кот себе на уме, часто ворчит, орёт, как безумный. Сейчас соседи на него жалуются, надеюсь в новом доме нас полюбят)))

Недавно прочитала, что как раз к сдаче этого же новую трамвайную ветку откроют. Это как раз кстати, будет еще удобнее добираться в центр, в пробках стоять не будем. Надеюсь, что откроют ветку без задержек)

Нужна была квартира чисто для себя, взяла студию в рассрочку от застройщика. Сделаю зонирование кухни и будет та же однушка. Дом с окнами в пол это практично, ну и красиво само собой. Жила в таком, реально позже лампы зажигала, когда прям совсем стемнеет.

Район развитый, в округе много детских развивашек, закусочных и продуктовых. Своя детская комната у нас тоже будет. Квартиры большие, подходят для многодетных семей. Места хватит всем, у детей даже будут собственные санузлы. Мы в детстве о таком и не мечтали))

В «Друзьях» понравилось что будут бесплатные игровые прям в доме и школа в 15 минутах ходьбы. Еще на телефоне можно будет смотреть трансляции с видеокамер во дворе, поэтому детей можно отпускать на площадку самих и своими делами заниматься

Долго думали, в итоге взяли с готовой отделкой "под ключ". Я сначала хотела "вайт бокс" чтобы сделать ремонт под себя, но муж убедил, что пока получим ключи+ найдём бригаду материал подорожает, так ещё ждать окончания ремонта. В итоге у нас целый подъезд в литере под ключ, никакой дрели с утра до вечера, коробок и побелки на лестничной клетке. Сразу заехал и живи в чистоте и тишине.

Респект застройщику, что не сделал придомовую территорию парковкой для машин. Будут спортивные площадки, футбольное поле и игровые зоны для деток. А сам жк полностью закрыт от машин. Все мамы оценят, что не надо дёргаться, когда выходишь на улицу с ребенком.

Покупали 3-комн. 70 квадратов в жк Друзья, в начале марта. За двоих детей нам сделали скидку по программе лояльности от застройщика. Получилось с каждого квадрата скинули 2000 руб. (по 1000 за ребенка как я поняла). Мы были приятно удивлены. Порадовало, что семьям с детками квартиры делают доступнее

Родители купили однушку в этом комплексе. Рассчитывала на 30 квадратов, а оказалось почти 40. Квартира на 8 этаже, вид на город красивый. Неподалеку 5ка и Магнит, Лента в получасе езды. Пвз рядом есть. Так что мне все очень нравится))

Девелопер не экономит метры, не пихает дома друг к дружке. Брали в Друзьях трешку. Для 4х членов семьи места хоть отбавляй. И за кухню-гостиную спасибо. В советских 5этажках такого сроду не было, будем привыкать к новому)

Приобрели дочери студию в Друзьях, оформили всё в рассрочку + получили подарок от застройщика. Удобно, что есть такой вариант оплаты частями. Мы ипотеку не признаем по личным причинам, поэтому нам этот вариант отлично подошел. Скоро уже сдача, будем помогать дочке с ремонтом и переездом)

В этом жк понравилась планировка 2-комнатной квартиры. Полноценные комнаты и кухня-гостиная в придачу. Не любитель я евро-форматов, в отличие от застройщиков)) Кроме планировок, мне понравилось, что в домах оборудуют колясочные, а во дворах не будет машин.

Взяли двушку во второй очереди. Район знаю хорошо, в Западном обходе с детства живу. Только теперь тут Гипер Лента и ТЦ Западный еще есть, и скоро трамвайная ветка дополнительная откроется. Недалеко выезд на ул. Красных Партизан, а там если без пробок минут за 20 можно доехать до Ростовского шоссе.

Приглянулся мне этот комплекс еще в том году. Не стал брать сразу, чтобы посмотреть на темпы строительства. Сейчас вижу, что дело на месте не стоит. Беру со спокойной душой)

Купили двухкомнатную квартиру в ЖК Друзья. Изначально нас с мужем заинтересовала развитая инфраструктура, понравилось что рядом есть много магазинов и остановка общественного транспорта. А позже в офисе продаж узнали о скором открытии школы и детского сада на территории комплекса. Хоть дочь пока и маленькая, но этот вопрос получается решили уже заранее

У нас в семье 3 детей, младшему из которых нет и года. Искали жилье с семейной инфраструктурой. То бишь детскими и спортплощадками, игровыми комнатами, детсадом и школой. Нашли комплекс «Друзья», где все это есть +обустроят колясочные. Район новый, но его активно обустраивают. До центра города минут 35-40 езды.

Комплекс расположен в новом и крутом развивающемся районе, всё нужное рядом. При этом до центра можно добраться за полчаса, а рядом с домом - своя большая многоуровневая парковка. Муж наконец-то расслабится и перестанет по полчаса искать парковочное место)) Сына отдадим в школу на территории комплекса, её построят как раз к сдаче. Довольны покупкой.

Съездила в офис продаж, менеджер дал всю информацию по комплексу. Понравилось, что дома девятиэтажные. Район этот нравится, там сейчас много новых комплексов возводят. У Семьи цена устроила.

Приветливый менеджер в офисе продаж подобрал для нас ну просто суперскую двушку! Хотя по сути это целая евротрешка, кухня настолько большая, что можно даже небольшую гостиную там обустроить, а в лоджии поставить кресло и неспешно потягивать кофе по утрам.

Пару раз проезжал мимо жк, видел, что строят активно. Почитал побольше про комплекс… И понял, что надо вложиться. Сейчас инвест в недвижимость – самый надежный. Плюс место тут будет прям очень хорошее, троллейбус уже провели, трамвай планируется в будущем. В случае чего проблем с продажей точно не возникнет.

Застройщик обещает усиленную шумоизоляцию за счет хорошей входной двери и увеличенной стяжки пола. Ну что ж, посмотрим. Семья всегда строила дома качественно, так что и здесь, думаю, все будет нормально. У нас родители живут в Светлограде, там вообще иногда забываешь, что находишься в многоэтажном доме.

Проект этого ЖК нам понравился, все продумано для людей. Хорошее расположение комплекса, рядом есть нужная инфраструктура: продуктовые магазины, городская больница, свой садик на территории, также школу строят, которая если верить баннерам и инфо от администрации будет филиалом крутой гимназии. У нас сейчас в нынешнем доме огромные проблемы с парковкой, поэтому для себя отметили большой паркинг, будем спускаться лифт -1 этаж на парковку, экономично во времени.

Большой минус всех новостроек – нехватка парковочных мест для жителей. А у нас с мужем две машины, поэтому искали жк, который предлагает свою парковку на территории. В Друзьях коэффициент мест 1 к 1, своя многоуровневая парковка прям у дома + квартир в комплексе не много. Поэтому решили квартиру здесь. Наконец-то больше не придется решать вопрос с соседями по поводу парковки, меньше поводов для ссор будет. А то реально уже никаких сил нет)

Понравилось, что застройка комплексная и три дома первой очереди с садиком сдадут сразу. Как дома построят, так и строительную технику всю отгонят, не нужно будет слушать весь этот шум и ждать, когда другие очереди достроят. Во дворе строительного мусора тоже не будет – сплошные плюсы.
Вовремя мы решились брать квартиру, по этому жк есть много скидок, некоторые из них до конца октября. Так что мы подсуетились и взяли двушку) За это нам скидку сделали на каждый м2 по 10к, а у нас квартира 61 квадрат. Можно считать, что на обустройство квартиры деньги у нас уже есть, что очень приятно)