Поиск новостроек
| Общий рейтинг жк | |
| Транспорт: | |
| Инфраструктура: | |
| Цена / Качество: | |
| Оценка посетителей: |
Взяли большую квартиру на последнем этаже, чтобы жить в пентхаусе. Жаль девелопер не внедрил ...
Дарья Лыскова
эксперт 23квартры.ру
Жилой комплекс находится в центре города Краснодара, или максимально к нему близко, от улицы Красная и Коммунаров — это достаточно близко и быстро добираться.
Комплекс имеет два уже данных дома и несколько литеров. Всего их около семи, они строятся в две параллельные прямые, соединенные между собой стилобатами, и под ними уже привычная парковка. Также на территории строится парковка многоуровневая, детский сад уже скоро сдаётся и строится школа, где тоже в ближайшее время сдача.
Территория комплекса достаточно большая, и наличие детских учреждений на ней, конечно, очень многих привлекает, потому что можно спокойно можно ребёнка отпускать самостоятельно добираться, территория закрытая.
При отделке используются достаточно дорогие и интересные материалы. Если первые два дома выполнены по технологиии монолит — кирпич, то здесь уже во внешней отделке используются и керамогранитные вставки, и очень много стекла, то есть это панорамное остекление, затемнение внутрь, выглядеть это будет очень красиво.
Плюсы определенно есть. У ЖК большая территория и качество строительства высокое. К этому застройщику нет вопросов и по срокам сдачи. Плюс все необходимые учреждения на территории, локация данного комплекса, транспортная доступность, рядом с ЖК находитя Садовый мост, ходит трамвай в любое направление города вы всегда уедете. Пробочно, если относительно машин, но это как и везде в Краснодаре. В принципе в дневное время можно уехать отсюда без проблем. Рядом Чистяковская Роща, доступность улицы Красной.
Конечно не без минусов, рядом железная дорога, это некоторых смущает. Она не очень активная, но имеет место быть, находится достаточно близко, примерно 500 метров. Кого-то это не особенно смущает, можно плотно закрывать окна и тогда, если проходит поезд, это не особо слышно.
Цена комплекса адекватная для жилья в центре Краснодара.
Задать вопрос эксперту| Комнат | Площадь | Цена | Планировка | Дополнительно |
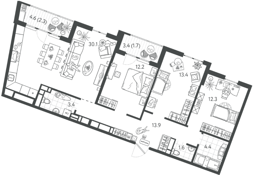
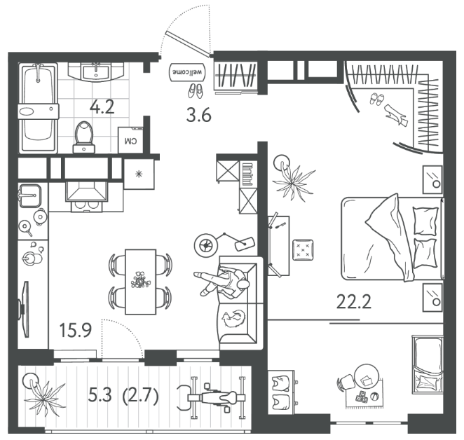
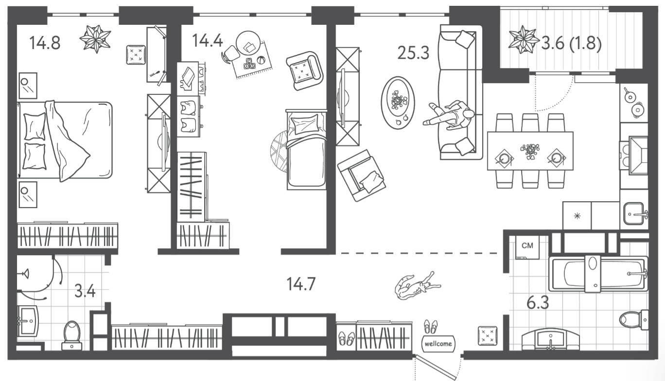
| студия | 26.15 / 15.9 м² | от 7 191 250 руб. (275 000 руб./м²) | Планировка | |
| 1 | 35.65 / 11.8 м² | от 9 875 050 руб. (277 000 руб./м²) | Планировка | |
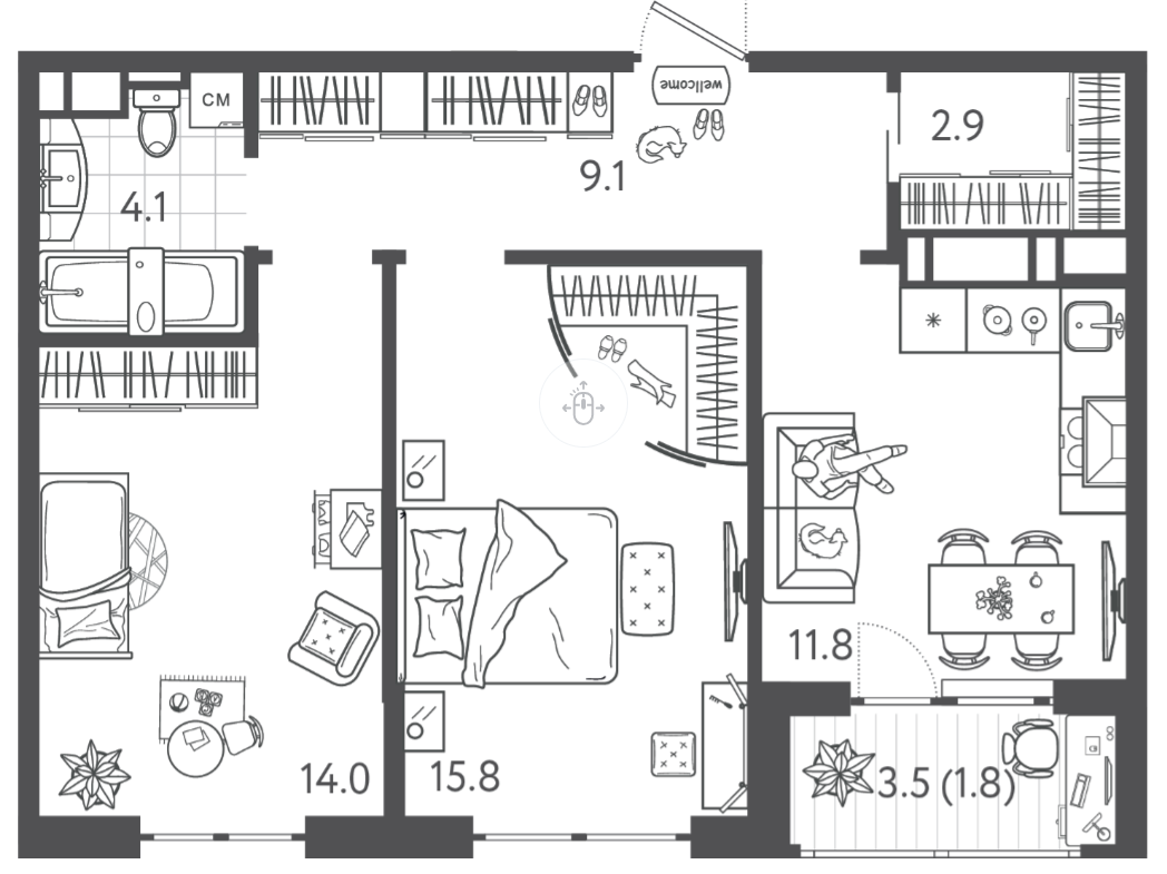
| 1 | 44.2 / 16.8 м² | от 9 503 000 руб. (215 000 руб./м²) | Планировка | |
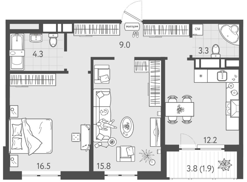
| 1 | 47.1 / 13.8 м² | от 10 833 000 руб. (230 000 руб./м²) | Планировка | |
| 1 | 50.35 / 20.0 м² | от 13 846 250 руб. (275 000 руб./м²) | Планировка | |
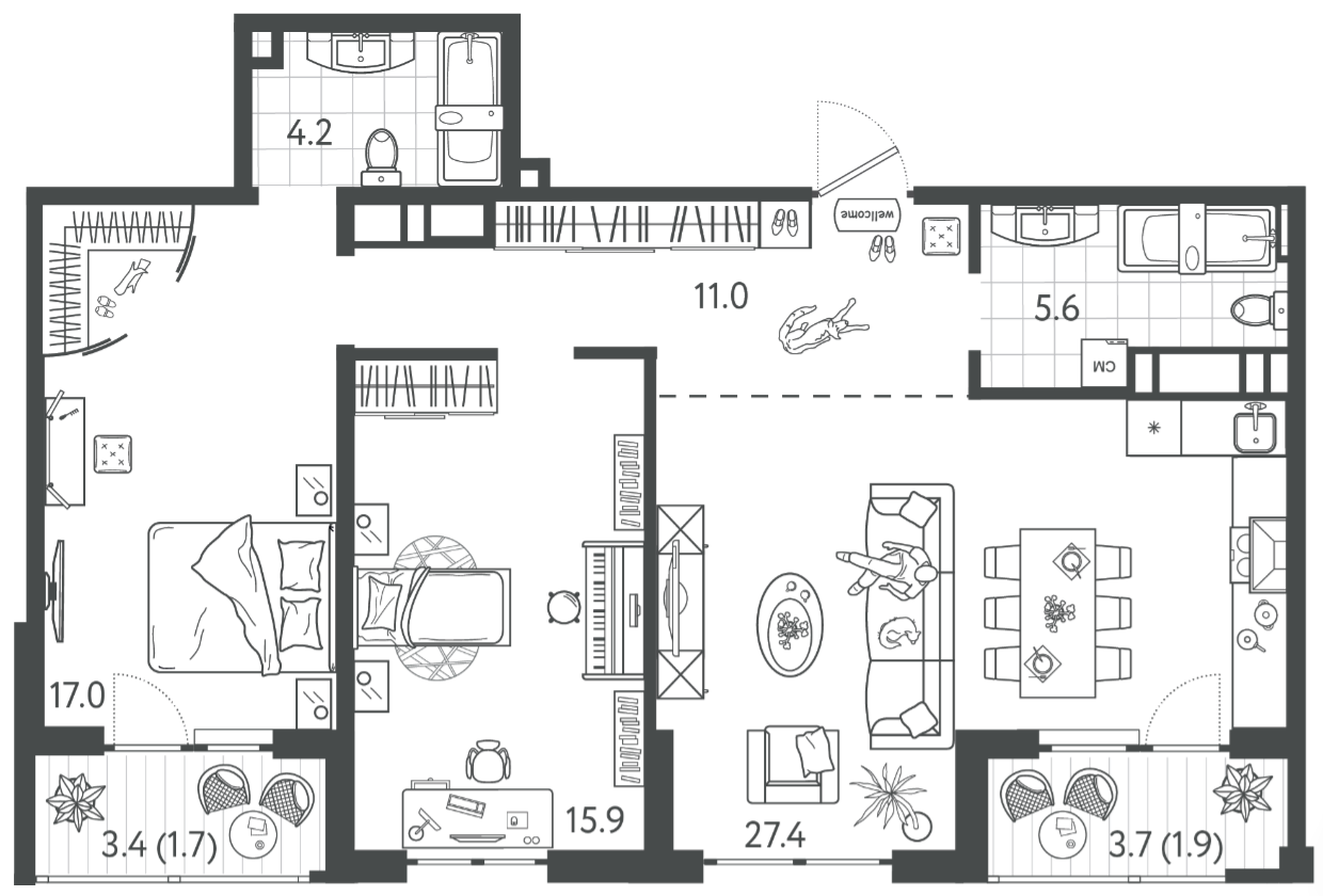
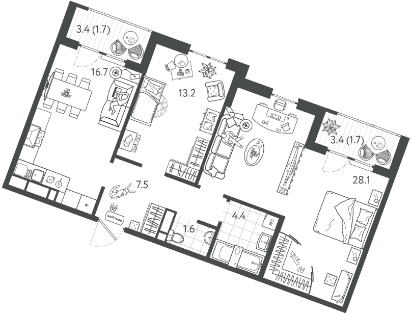
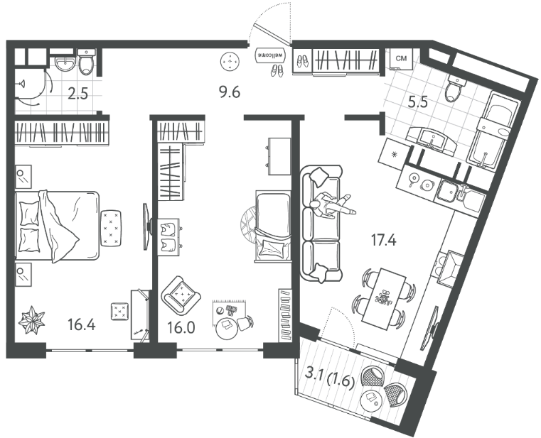
| 2 | 55.3 / 28.0 м² | от 12 621 200 руб. (228 231 руб./м²) | Планировка | |
| 2 | 58.1 / 27.5 м² | от 17 430 000 руб. (300 000 руб./м²) | Планировка | |
| 2 | 59.05 / 29.8 м² | от 13 398 750 руб. (226 905 руб./м²) | Планировка | |
| 2 | 62.05 / 33.7 м² | от 16 008 900 руб. (258 000 руб./м²) | Планировка | |
| 3 | 89.4 / 50.4 м² | от 18 952 800 руб. (212 000 руб./м²) | Планировка |
| Комнат | Площадь | Цена | Планировка | Дополнительно |
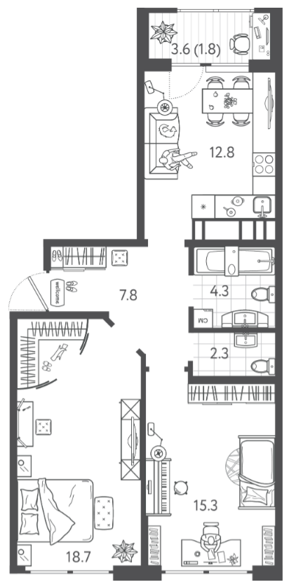
| студия | 24.6 / 14.4 м² | от 7 257 000 руб. (295 000 руб./м²) | Планировка | |
| 1 | 37.4 / 11.8 м² | от 9 933 000 руб. (265 588 руб./м²) | Планировка | |
| 2 | 50.2 / 26.1 м² | от 12 550 000 руб. (250 000 руб./м²) | Планировка | |
| 2 | 54.0 / 25.7 м² | от 13 525 000 руб. (250 463 руб./м²) | Планировка | |
| 2 | 59.2 / 30.1 м² | от 13 079 000 руб. (220 929 руб./м²) | Планировка | |
| 2 | 62.5 / 33.6 м² | от 17 256 250 руб. (276 100 руб./м²) | Планировка | |
| 2 | 63.65 / 27.7 м² | от 19 095 000 руб. (300 000 руб./м²) | Планировка | |
| 2 | 82.85 / 32.5 м² | от 24 855 000 руб. (300 000 руб./м²) | Планировка | |
| 3 | 88.1 / 47.4 м² | от 19 635 000 руб. (222 872 руб./м²) | Планировка | |
| 3 | 93.25 / 46.1 м² | от 27 975 000 руб. (300 000 руб./м²) | Планировка |
| Комнат | Площадь | Цена | Планировка | Дополнительно |
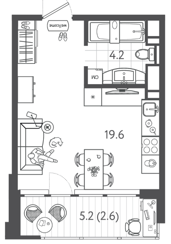
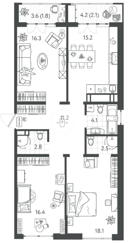
| студия | 25.95 / 19.6 м² | от 7 540 000 руб. (290 559 руб./м²) | Планировка | |
| 1 | 35.55 / 12.9 м² | от 9 269 000 руб. (260 731 руб./м²) | Планировка | |
| 2 | 53.82 / 28.4 м² | от 13 757 250 руб. (255 616 руб./м²) | Планировка | |
| 2 | 55.35 / 25.8 м² | от 13 200 000 руб. (238 482 руб./м²) | Планировка | |
| 2 | 62.9 / 34.3 м² | от 14 146 000 руб. (224 897 руб./м²) | Планировка | |
| 3 | 82.15 / 46.4 м² | от 18 894 500 руб. (230 000 руб./м²) | Планировка | |
| 3 | 97.65 / 49.4 м² | от 29 295 000 руб. (300 000 руб./м²) | Планировка | |
| 3 | 112.85 / 47.2 м² | от 34 983 500 руб. (310 000 руб./м²) | Планировка | |
| 3 | 129.35 / 58.4 м² | от 40 098 500 руб. (310 000 руб./м²) | Планировка | |
| 4 | 107.22 / 55.2 м² | от 33 238 200 руб. (310 000 руб./м²) | Планировка |
| Комнат | Площадь | Цена | Планировка | Дополнительно |
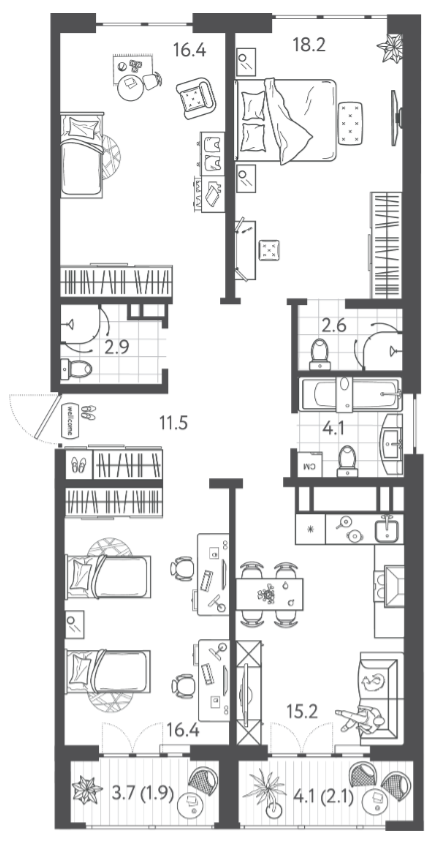
| 1 | 36.65 / 11.8 м² | от 9 791 750 руб. (267 169 руб./м²) | Планировка | |
| 1 | 36.85 / 16 м² | от 9 791 750 руб. (265 719 руб./м²) | Планировка | |
| 2 | 53.95 / 27.3 м² | от 12 443 100 руб. (230 641 руб./м²) | Планировка | |
| 2 | 66.35 / 29.7 м² | от 14 597 000 руб. (220 000 руб./м²) | Планировка | |
| 2 | 67.75 / 32.4 м² | от 14 810 250 руб. (218 601 руб./м²) | Планировка | |
| 2 | 72.1 / 28.5 м² | от 21 630 000 руб. (300 000 руб./м²) | Планировка | |
| 2 | 78 / 25.7 м² | от 23 400 000 руб. (300 000 руб./м²) | Планировка | |
| 2 | 87.8 / 29.6 м² | от 26 340 000 руб. (300 000 руб./м²) | Планировка | |
| 3 | 84.5 / 51.6 м² | от 18 595 400 руб. (220 064 руб./м²) | Планировка | |
| 3 | 91.45 / 49.3 м² | от 27 435 000 руб. (300 000 руб./м²) | Планировка |
| Комнат | Площадь | Цена | Планировка | Дополнительно |
| студия | 25.05 / 15.8 м² | от 7 515 000 руб. (300 000 руб./м²) | Планировка | |
| студия | 30.6 / 22.4 м² | от 8 415 000 руб. (275 000 руб./м²) | Планировка | |
| 2 | 48.3 / 28.2 м² | от 11 592 000 руб. (240 000 руб./м²) | Планировка | |
| 2 | 48.87 / 28.2 м² | от 12 217 500 руб. (250 000 руб./м²) | Планировка | |
| 2 | 55.1 / 28.7 м² | от 12 122 000 руб. (220 000 руб./м²) | Планировка | |
| 2 | 55.35 / 27.2 м² | от 12 177 000 руб. (220 000 руб./м²) | Планировка | |
| 2 | 60.95 / 19.0 м² | от 14 083 500 руб. (231 066 руб./м²) | Планировка | |
| 3 | 88.6 / 45.1 м² | от 26 580 000 руб. (300 000 руб./м²) | Планировка |
ЖК “Все свои” — современный комфортабельный комплекс многоэтажных домов, возводимых по монолитно-кирпичной технологии в центре Краснодара на ул. Колхозной.
ЖК “Все свои” расположен между ул. Красной и парком “Чистяковская роща” в районе, где преобладает частная и среднеэтажная застройка (хрущевки).
Застройщик “Семья” построил и сдал свои комплексы в срок, так что в надежности компании сомневаться не приходится. На территории комплекса планируется строительство двух муниципальных детских садов на 200 мест каждый.
Покупать безопасно и инвестиционно выгодно.
Жилой комплекс “Все свои” — это 9 разноуровневых каскадных домов комфорт-класса высотой от 19 до 23 этажей. Дома имеют сейсмоустойчивость 7 баллов, в подъездах предусмотрена установка 3 скоростных лифтов: 1 грузовой и 2 пассажирских.
Территория комплекса составляет 11 Га, на которых расположатся:
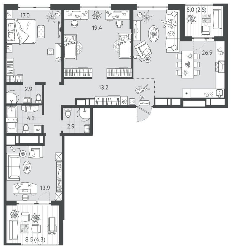
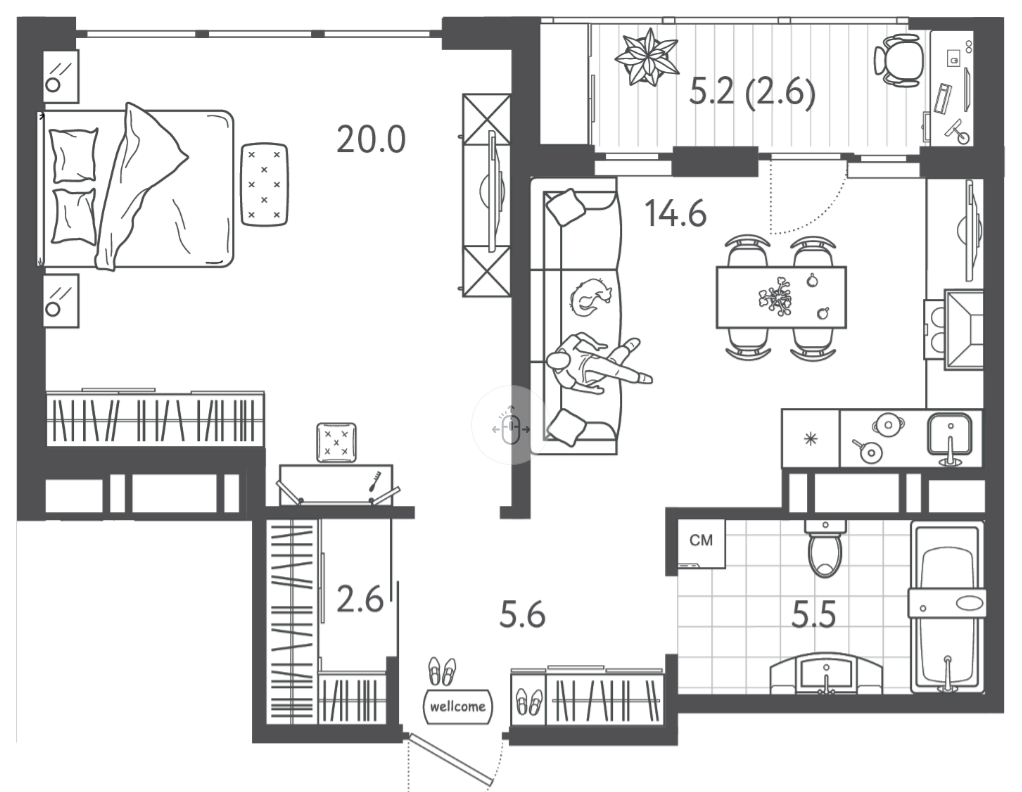
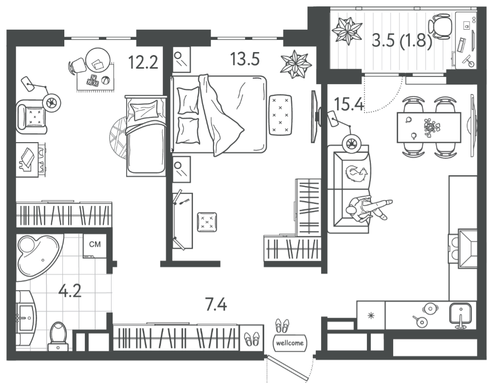
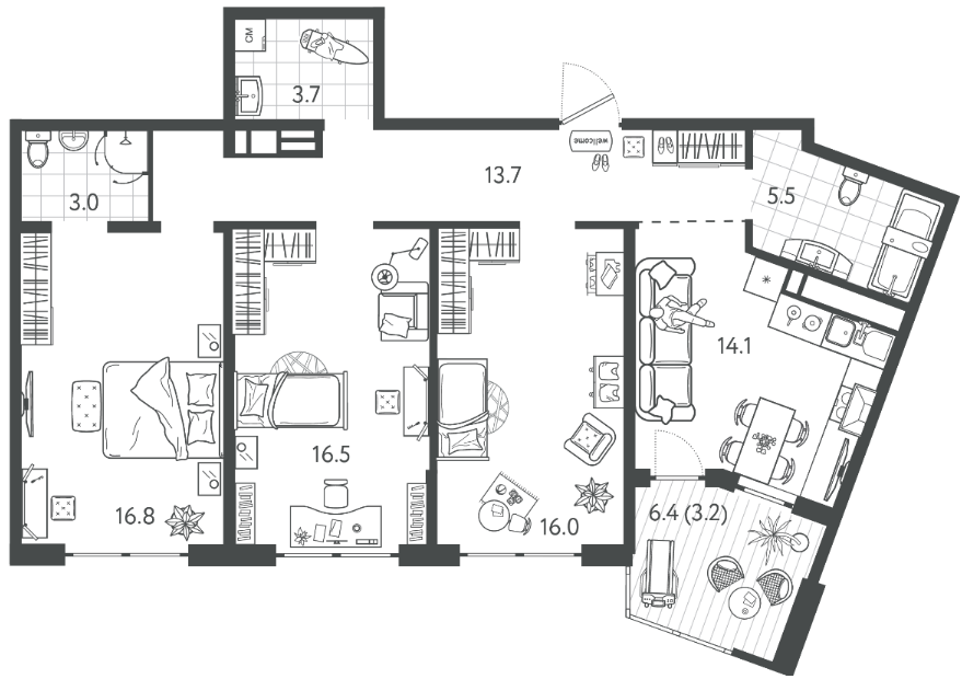
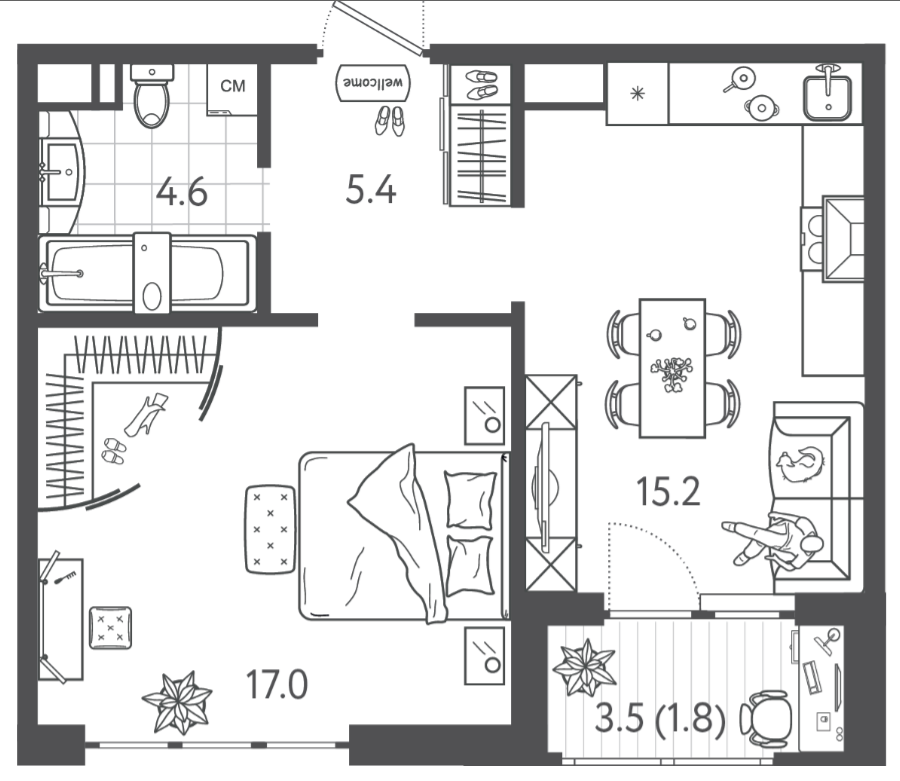
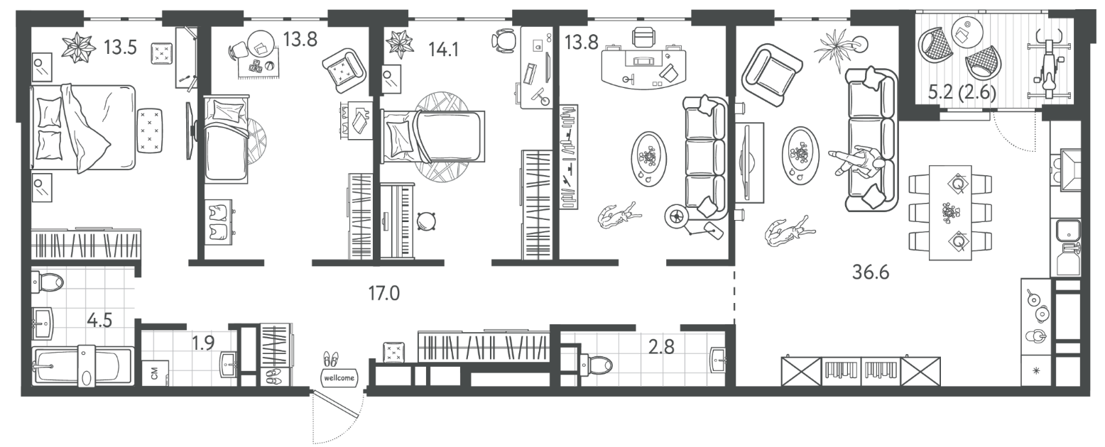
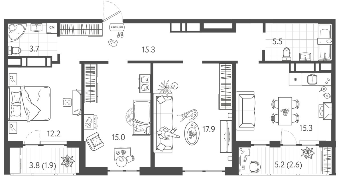
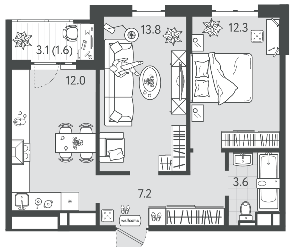
В новостройке продаются студии, евро 1-, 2-, 3-, 4- квартиры и классические планировки 1-, 2-, 3- комнатных квартир. Помещения сдаются с предчистовой отделкой, окнами ПВХ, входной металлической дверью, приборами учета воды, электроэнергии и тепла.
Многофункциональный ЖК “Все свои” имеет оригинальный архитектурный проект: стилобат (многоуровневый цоколь), фасад из декоративного облицовочного кирпича, панорамное и витражное остекление, а также красивую входную группу (подъезд).
Придомовая территория спроектирована с учетом потребностей жителей комплекса. Большое количество парковочных мест, детская площадка с современным покрытием и аттракционами, спортивная площадка для активных игр и занятий на уличных тренажерах, зона для отдыха и прогулок. Во дворе ЖК “Все свои” предусмотрена озеленение территории на стилобате с газоном, декоративными кустарниками и деревьями. Для маломобильных граждан спроектирована безбарьерная среда.
Жилой комплекс “Все свои” строится в центральном районе Краснодара. Месторасположение удачное, так как в шаговой доступности находятся:
Транспортная доступность на высоком уровне. Дорога в центр города на трамвае займет 5-10 минут. Удобная развязка позволит быстро добраться в любую часть Краснодара на личном или общественном транспорте.
Строительство объекта ведет компания “Семья”. Застройщик трудится с 2013 года и производит полный цикл работ, от создания проекта до ввода в эксплуатацию комплекса домов. Компания за короткий промежуток времени хорошо зарекомендовала себя в Краснодаре, построив на Западном обходе микрорайон “Светлоград” с собственной внутренней инфраструктурой и жилой комплекс “Андерсен” в районе Краевой клинической больницы.

Брали у этого застройщика уже 2 квартиры – двушку в «Друзьях» и студию в «Все свои вип». Оба раза были в офисе продаж, где нас очень тепло поприветствовали и на второй раз даже вспомнили, приятно) Сотрудники ответственные и квалифицированные. В первый раз покупка прошла быстро и гладко, поэтому в следующий раз ехали со спокойной душой. После сдачи и ремонта планируем сдавать обе квартиры.

Еще в конце января приезжали узнать об строящемся комплексе Все свои. Взяли пару недель подумать, решили все же купить, пока цены не выросли. О застройщике раньше не сильно много слышали. Почитали в соцсетях, убедились, что нет «замороженных» зданий, долгов и прочего. Нас устроило.

Такое ощущение, что все отзывы куплены. Прям все идеально

СК Семья всегда строит свои комплексы в развитых районах, школы и сады в шаговой доступности. Купили квартиру в жк Все свои Вип, на территории которого будет филиал одной из лучших гимназий Краснодара, теперь ребенок сможет получить качественное образование и даже ездить через пол города не придется.

Уже много лет работаю в сфере недвижимости и могу с уверенностью сказать, что этот жилой комплекс действительно достойный. Хороший район, большой внутренний двор с разнообразным наполнением, современное оснащение: умные домофоны, автоматическая передача показаний счётчиков и видеонаблюдение по всему периметру. Качественное исполнение домов и самих квартир. Взял себе тут квартиру в 4 литере.

Для меня решающим было расположение. 7 минут до центра на машине или 15 минут пешком - супер! И дизайн общих зон просто на высшем уровне - лаконично, красиво, будто не подъезд дома, а дорогой отель или ресепшн где-то в музее)

Меня завлекли планировки. Такой огромной гардеробной у меня еще не было! Теперь все мои платья будут в порядке. И сам комплекс такой светлый, стильный, дома не вплотную, есть где дышать.

Мы приняли решение приобрести квартиру у компании "Семья", в сети о ней много хороших отзывов. Хотя все же больше выбрали ее из-за многолетнего опыта в сфере строительства и, конечно, из-за своевременной сдачи своих объектов. Все же когда можешь своими глазами увидеть результаты трудов застройщика, довериться ему куда проще.

Когда застройщик действительно заботится о своих жильцах, то получаются такие жк, как наш комплекс Все свои) В нашей первой очереди придомовая территория уже классная, а во второй, судя по картинкам, будет вообще пушка!) Уже хочу прогуляться по новому двору, но ее еще строят. Слышала, что по срокам укладываются.

Подарок от застройщика в виде бесплатного парковочного места к квартире – это очень щедро и удачно для меня) Я как раз думал, куда мне девать машину, если буду здесь жить, как менеджер в офисе продаж предложил мне планировку по этой акции. Квартира подходила под все нужные мне критерии, и я практически сразу же согласился на покупку, ну а чего ждать, когда брать надо?

Работаю риелтором уже давно и знаю толк в недвижке, как никто другой. Если заказчики рассматривают новостройки, показываю этот ЖК. В первую очередь дома монолитно-кирпичные, а это, по мне, удачный вариант застройки. В квартирах высокие потолки, большая площадь остекления, приличные метражи, во всех квартирах есть просторные балконы. Инфраструктура района развита: магазины, салоны красоты, медицина, спортзалы, на территории комплекса есть детский сад и школа. Советую комплекс как молодым и активным ребятам, так семейным парам с детьми.

У «Семьи» адекватные цены на квартиры. Они не завышены в сравнении с другими жк (а сравнивала я много). При этом мне нравится, что ты видишь, что берешь и за что платишь, если судить по сданным очередям. Квартиры просторные, дворы большие и с кучей площадок, обязательно есть паркинг и социалка. По всем фронтам комплексы продуманы.

Долго сидела на сайте Все Свои, выбирала планировку, читала про застройщика, рассматривала фотоотчеты строительства и вот наконец определилась, решила съездить в офис продаж… И благополучно заболела. Подумала, ну ладно, позвоню и получу консультацию по телефону – любопытство мое на той конце трубки удовлетворили, и даже предложили оформить покупку дистанционно, мол у них акция - 1% скидка дается на такую сделку. 1% не так много, конечно, но все равно приятно, после тщательного взвешивания все же купила квартиру дистанционно)

Для покупки рассматривал только новостройку, остановился на «Все свои вип». Помимо хорошего расположения комплекса, плюсом идут охрана, вход на территорию по Face ID, видеонаблюдение. Здесь точно все будет спокойно и без лишних глаз. Сейчас на этапе строительства цена приятная, потом дороже будет, тем более это центр. Так что считаю, выгодно вложился.

Наша семья живет в соседнем регионе, поэтому квартиру пришлось покупать дистанционно. Менеджеры быстро оформили документы и отправили мне на электронную почту. Зря только переживал. Теперь пока ждем выдачу ключей, а потом дочь с зятем в эту квартиру переедут. У них в планах прибавление в семье, там как раз и сад, и школа будут уже активно функционировать.

Купили квартиру во Все свои Вип, тут и паркинг будет причем как наземный, так и подземный. Сначала подумывал взять машиноместо в аренду, но потом прикинул и решил все же купить, тем более, что есть возможность взять его в рассрочку до конца строительства.

Квартира шла с предчистовой отделкой, нам это даже был плюс, потому что мы нанимали дизайнера и хотелось бы, чтобы он работал с квартирой, которая уже готова к чистовому ремонту. Двор отличный, для детей есть много развлекательных зон: качели, батуты, горки. Есть прогулочная зона для зарядки или пробежки + присутствует место для выгула собак, можно не беспокоиться, что ребенок возьмет ненужное в руки

Мне кажется, безбарьерным входом в подъезд особо никого не удивишь, сейчас это скорее норма, а место здесь реально зачетное.
Высоток рядом нет и вряд ли будут, вид из окна на город, конечно, красивый у нас. Хотим взять этаж повыше и чтоб окна на ул.Садовую выходили.

Сдача в 2024, пока ждем… смотрю, нормальными темпами идут, рабочих на стройке полно, может повезет с досрочной сдачей как в светлограде- три литера на 6мес раньше срока ввели, думаю шансы и у нас есть.

Мне нравится, что вход в подъезд будет безбарьерным. Мамы с колясками меня, думаю, поймут И сами по себе они будут сквозными, не нужно обходить дом, чтобы выйти на нужную сторону. Это очень удобное и практичное решение. На первых этажах у нас будет коммерция, откроются магазины, аптеки, кафешки. Так что все бытовые вопросы можно решить, не выходя за пределы комплекса)

Продуманный комплекс. Больше всего нам понравился из жк бизнес-класса, которые мы просмотрели. Главный его плюс, на наш взгляд, что здесь предусмотрены свои соц.учреждения. Детский садик в прошлом году достроили и сдали, сейчас школу строят. После переезда сюда не нужно будет голову ломать, куда пристроить детей и бегать по близлежащим садам и школам. Все будет буквально в двух шагах от дома

Двор у нас классный, там можно и отдыхать, и гулять, и играть. Наш ребенок наконец-то сам стал на прогулку проситься, раньше его от компьютера оторвать не могли. Подружился с местными ребятами, теперь вместе резвятся на лазалках и футбол играют. А когда комплекс достроят, двор станет еще больше и для детей появятся новые места для игр.

Давно планировал открыть свою кофейню, но не находил такого места, чтоб сразу загорелось. Когда нашел Все свои и полистал буклет, понял, что поиски можно остановить. Место мне кажется самым подходящим. Буду покупать коммерческое помещение, как только будет возможность.

Взяли двушку в комплексе Все свои, больше всего понравилось что это центр. Рядом с домом много коммерции открывать планируют. Во дворе обещают красивый парк разбить, ну и сама архитектура радует, отличается от других новостроек в лучшую сторону.
Взяли большую квартиру на последнем этаже, чтобы жить в пентхаусе. Жаль девелопер не внедрил тренд на озеленение крыш)))с такими видами могла бы получиться шикарная лаундж-зона