Поиск новостроек
| Общий рейтинг жк | |
| Транспорт: | |
| Инфраструктура: | |
| Цена / Качество: | |
| Оценка посетителей: |
Я спортсмен, поэтому мне важно иметь хорошую спортивную площадку на территории ЖК, а моим ...
| Комнат | Площадь | Цена | Планировка | Дополнительно |
| свободная планировка | 97.43 м² | Планировка | Отдельный вход, Этаж: 1, Литер 4 | |
| свободная планировка | 133.55 м² | Планировка | Отдельный вход, Этаж: 1, Литер 4 | |
| свободная планировка | 140.47 м² | Планировка | Отдельный вход, Этаж: 1, Литер 4 | |
| свободная планировка | 170.92 м² | Планировка | Отдельный вход, Этаж: 1, Литер 4 | |
| свободная планировка | 133.55 м² | Планировка | Отдельный вход, Этаж: 1, Литер 6 | |
| свободная планировка | 141.12 м² | Планировка | Отдельный вход, Этаж: 1, Литер 6 | |
| 2 | 97.43 м² | Планировка | Отдельный вход, Этаж: 1, Литер 6 |
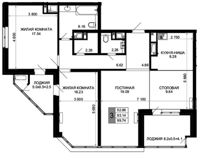
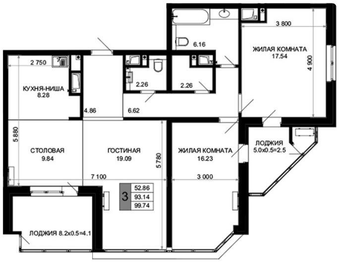
ЖК «Сегодня» включает пять литеров разной этажности: три 16-этажных и два 12-этажных. Класс жилья – комфорт-плюс. Комплекс имеет спортивные площадки, зону отдыха, развлекательный центр для детей под открытым небом, прогулочную зону с арт-объектами, сеть магазинов. Строительство ведется по монолитно-кирпичной технологии. Сейсмостойкость здания достигает 7 баллов. Яркие цвета в оформлении фасада и большие панорамные окна украшают комплекс, делая его одним целым с богатой южной природой. Около 40% квартир видовые.
Что важно, ЖК «Сегодня» это завершение реализации проекта ЖК «Клубный квартал». Прошлый застройщик не справился с обязательствами, хотя начал строительство еще в 2015 году, но прекратил в 2017. Передача комплекса компании «ССК» позволила исправить судьбу долгостроя и обеспечить дольщикам долгожданные квартиры. Было решено провести ренейминг, чтобы репутация прошлого ЖК не отбрасывала тень на достраивающийся.
Расположение ЖК «Сегодня» на улице Ветеранов в Прикубанском городском округе объясняет близость к крупнейшим транспортным артериям края – шоссе Ближний Западный Обход, улицам Западный Обход и Дзержинского. Это позволяет быстро доехать до разных частей города и Краснодарского Края в целом. Путь до центра города занимает около получаса, до аэропорта – 40-45 минут. Без пробок можно доехать до черноморских курортов за 2-2,5 часа.
Хорошо развит общественный транспорт, но хуже, чем в более старых районах. Буквально в ста метрах от дома расположены остановки автобусов (55 и 78) и маршрутных такси (75 и 121а). Но чтобы иметь доступ к большему количеству маршрутов, нужно ехать с пересадками.
ЖК «Сегодня» расположен в микрорайоне ТЦ «Красная площадь» новом и активно развивающемся, что объясняет высокий уровень инфраструктуры.
Буквально в 5-7 минутах пешком расположено много учебных учреждений:
Также в шаговой доступности находится городская поликлиника №13, частный медцентр «Здоровье и долголетие», стоматологические клиники.
Из торгово-развлекательных объектов расположены ТЦ «Красная площадь», гипермаркеты «Перекресток», «Пятерочка», «Магнит», «Леруа Мерлен». За 10 минут можно дойти до выставочного центра «Экспоград-Юг», исторического музея, парка «Имени 300-летия полиции России».
Из спортивных объектов расположены Баскет Холл, Ледовый дворец, оздоровительный центр и бассейн «Детки».
Поблизости ЖК «Сегодня» много салонов красоты, парикмахерских, центров косметологии. Из мест отдыха есть кафе, рестораны, кофейни, бары. Туристическая сфера представлена отелями, гостиницами и небольшими домами отдыха.
Застройщиком выступает группа компаний «Современные стандарты качества» (ССК). Она была основана в 2000 году. Входит в ТОП-10 застройщиков Российской Федерации. Выполняет полный комплекс работ: от формирования технической документации для заказа и проектирования до строительного контроля и лабораторного сопровождения. Все испытания проводятся на собственной лаборатории.
Приоритет компании – социальная помощь дольщикам. «ССК» достроила более 13 проблемных объектов в Краснодаре. Но есть и часть собственных проектов. Всего застройщик работал над 18 жилыми комплексами в краевой столице (9 сейчас находится на стадии строительства, остальные – уже сданные). Всего было введено в эксплуатацию более 900 тысяч квадратных метров жилья. Компания не была замечена в неуплате налогов и обязательных взносов. Строительство жилого комплекса «Сегодня» и других проектов ведется преимущественно на свои средства.

Квартиры с продуманной планировкой, хорошие окна — в квартире светло и достаточно тихо, несмотря на близость к дороге. Отдельно хочется отметить качество отделки в местах общего пользования — всё выполнено аккуратно и выглядит достойно. Территория ухоженная, много зелени и аккуратных прогулочных зон.

Квартира соответствует ожиданиям и описанию: хорошая планировка, качественная отделка, светлые комнаты. Дом современный, чистый подъезд, ухоженная территория. Отдельно хочется отметить тишину и спокойную атмосферу.
Процесс покупки прошёл спокойно и организованно — все этапы были понятны, документы оформлены без проблем. В целом впечатления исключительно положительные. Считаем покупку отличным вложением

Ребята, решил поделиться. Для меня это уже вторая покупка жилья, и скажу так: первый раз выбирал сердцем и кошельком, а сейчас - головой и опытом. И мой выбор - ЖК Сегодня от ССК. Во дворе - уютно и продумано: площадки, зоны отдыха, свой променад для прогулок. Дома яркие, окна большие, чувствуется качество. Здесь купил не будущее "когда-нибудь", а готовую жизнь сегодня. Очень рекомендую тем, кто ценит своё время и хочет жить с комфортом сразу.

Приобрели квартиру в этом жилом комплексе и в целом остались очень довольны выбором. Понравилось удобное расположение, продуманная планировка и современная архитектура домов. Территория ухоженная, есть детские и спортивные площадки, достаточно мест для прогулок. Подъезды чистые, лифты работают исправно

Брали квартиру для сына, пока учится самое то я думаю, наверное лучше чтоб он сам написал отзыв, но с его слов живет хорошо, ук работает, соседи адекватные не буянят.

Хороший жк, всё в доступности, район развитый и приятный. Застройщик не обманул и сделал всё качественно. Рады хорошему выбору.

Хороший красивый современный жк, закрытая территория, детские площадки, очень хорошее место для семьи с детьми. Пока с трудностями не сталкивались и очень нравится

Отличная транспортная доступность и инфраструктура у данного жилого комплекса. Очень нравятся планировки и архитектурный вид фасада, а также разновидность придомовой территории с разными видами развлечений для детей, очень грамотный подход от застройщика к своим клиентам!

Идеальное место для жизни с детьми! Как мама в декрете, я ценю безопасность и продуманную инфраструктуру. Здесь спокойно отпускаешь ребенка на современную площадку. В подъездах широкие лифты и коридоры - с коляской никаких проблем. А самое главное - всё под рукой: поликлиника, сады, школы и магазины на любой вкус. Очень семейный и удобный район, чувствуешь себя комфортно.

Отличный вариант для студентов и тех, кто хочет жить отдельно! Родители помогли с покупкой однокомнатной квартиры, и я очень доволен. Жить одному — просто класс. Главные плюсы: район тихий и хороший, до университета рукой подать, а все необходимые магазины находятся прямо в доме или рядом. Очень удобно и экономит кучу времени. Рекомендую!

Я мать в декрете и для меня важно удобство и безопасность для моих детей. Не боюсь отпускать ребёнка на площадку, широкие лифты и коридоры, удобно для мамочек с колясками. В быстром доступе имеется поликлиника, детские сады, школы, различные магазины для покупок каждому члену семьи.

Спасибо родителям за квартиру, во время учебы взяли мне здесь однушку, одной прям классно, райончик не плохой, до учебы недалеко и магазины все практически на территории дома.

Комфортный и уютный ЖК. Очень нравится его расположение, планировки квартир и чистые придомовые территории с входными группами.

Хороший современный жк, живем уже давно. Со съемным жильем конечно не сравнится. Свое оно и есть свое. Ремонт сделали сами под себя и живем в удовольствие. Рядом магазины разнообраные, пвз, салоны красоты для женщин и прочее, вообще все что необходимо для жизни находится рядом, очень удобно. Однозначно довольны приобретением

Хочу оставить отзыв об сотруднике «менеджер» от ССК Екатерина Балакина.
В общем, когда был выбор квартиры (ЖК сегодня) 2 литер, ею был предложен вариант квартиры на 12 этаже с видом якобы на тц и «ЖК Новелла», в убежденной форме, что данная квартира расположена именно тут как на буклете данного жк и по раскладке квартиры(на ПК). Но оказалось что купил квартиру совсем в противоположной стороне (с видом на двор) и соседним подъездом. А что сказать про взаимодействие как с менеджером то это 0. Даже не читает мои редкие смс(вопросы про жк). Никому не советую данного менеджера в ССК.

Очень рада, что вложили деньги именно в это жилье. Все надежно, удобно и красиво

Благодаря застройщику, стройка которая стояла так долго сдвинулась с места и люди наконец таки получат свои квартиры. И большое спасибо администрации, теперь когда они приглядывают за этим объектом точно можно спать спокойно

Полностью вас поддерживаю, администрация вместе с сск большие молодцы что действительно помогают людям. Не первый раз слышу что сскашники кого то выручают, есть знакомые в жк свобода, говорят что уже совсем руки опустили и в итоге им именно сск достроил дом. Надеюсь нас так же выручат и по быстрее.

Живем практически напротив с супругом, заметила что с потеплением рабочих стало еще больше, каждый день практически видны изменения, скорей бы достроили, и шума меньше было и домик был бы красивый, так еще и людям, с которыми ранее не хорошо поступили, помогут

Прогресс строительства на глазах, часто вожу ребенка в школу мимо нашего будующего места жительства и не могу не радоваться когда вижу изменения в стройке, рабочие постоянно присутствуют краны работают, ждем не дождемся что бы уже заехать домой

Проект дома крайне многообещающий, поэтому приняли решение с мужем инвестировать. Ждём строительства, но понимаем, что ждат ьпридется не слишком долго, ведь темпы строительства очень многообещающие

Правильно сделали что именно сейчас на это решились, раньше был другой застройщик и процесс встал а сейчас эти дома будут над надзором администрации и уверен все сдадут в срок

Наверное пока что рано что то говорить, но я очень хочу поддержать застройщика который все таки решил восстановить справедливость. Единственное что можно сказать, стройка идет очень уверенными темпами и это не может не радовать.

А чего рано говорить, застройщик очень надежный, в новостях посмотрите, в Краснодаре не так много застройщиков беруться за такую ответственную задачу как восстановление прав обманутых дольщиков. Да и строят они не плохо, как сказал знакомый риэлтор - большинство квартир сдают без скандалов.

Спасибо большое застройщику что взялись за наш ЖК, мы уже думали что этот процесс ни когда не сдвинится с мертвой точки а теперь уже даже видны результаты строительства. Так же большое спасибо администрации Краснодара что не оставили этот вопрос в стороне.

Как быстро наш несчастный жилой квартал переименовали в ЖК Сегодня, ну что же, может оно и к лучшему, слышала что у этого застройщика большой опыт в восстановлении прав дольщиков, можем только поддержать и пожелать скорейшего строительства.

Отличный жк, те кто уже жили тут могут подвердить, да инциденты бывают, но во первых их все устраняют, во вторых ценник+район очень хороши, сдали бы только по быстрее последний литер что бы визуально все гормонировало и будет прям шик
Я спортсмен, поэтому мне важно иметь хорошую спортивную площадку на территории ЖК, а моим чудным карапузам детские площадки. Моя супруга довольна районом и близостью к работе и подружкам. Так что получается идеальный дом для нашей семьи.