Поиск новостроек
| Общий рейтинг жк | |
| Оценка посетителей: |
Застройщик обманывает покупателей. Помещение для установки внешнего блока кондиционера (сплит рум) чудесным образом превратилось ...
| Комнат | Площадь | Цена | Планировка | Дополнительно |
| студия | 26.66 / 7.90 м² | от 5 676 640 руб. (212 927 руб./м²) | Планировка |
| Комнат | Площадь | Цена | Планировка | Дополнительно |
| студия | 22.73 / 8.83 м² | от 4 893 650 руб. (215 295 руб./м²) | Планировка | |
| студия | 26.93 / 7.86 м² | от 5 037 400 руб. (187 055 руб./м²) | Планировка | |
| 1 | 36.09 / 11.29 м² | от 7 626 540 руб. (211 320 руб./м²) | Планировка | |
| 2 | 59.06 / 27.47 м² | от 11 043 540 руб. (186 988 руб./м²) | Планировка | |
| 2 | 65.84 / 28.71 м² | от 11 043 540 руб. (167 733 руб./м²) | Планировка |
| Комнат | Площадь | Цена | Планировка | Дополнительно |
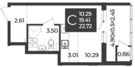
| студия | 22.25 / 10.29 м² | от 4 825 720 руб. (216 886 руб./м²) | Планировка | |
| студия | 22.45 / 10.29 м² | от 4 857 089 руб. (216 351 руб./м²) | Планировка | |
| 1 | 43.18 / 10.48 м² | от 9 020 000 руб. (208 893 руб./м²) | Планировка | |
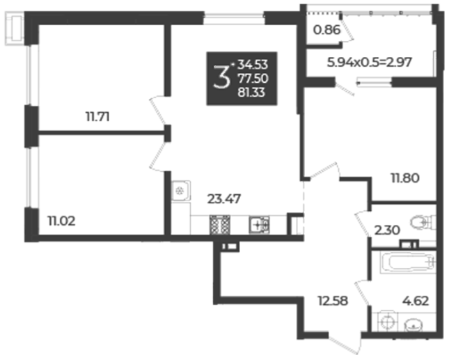
| 3 | 81.61 / 34.53 м² | от 11 891 450 руб. (145 711 руб./м²) | Планировка |
| Комнат | Площадь | Цена | Планировка | Дополнительно |
| студия | 22.25 / 10.29 м² | от 4 867 250 руб. (218 753 руб./м²) | Планировка | |
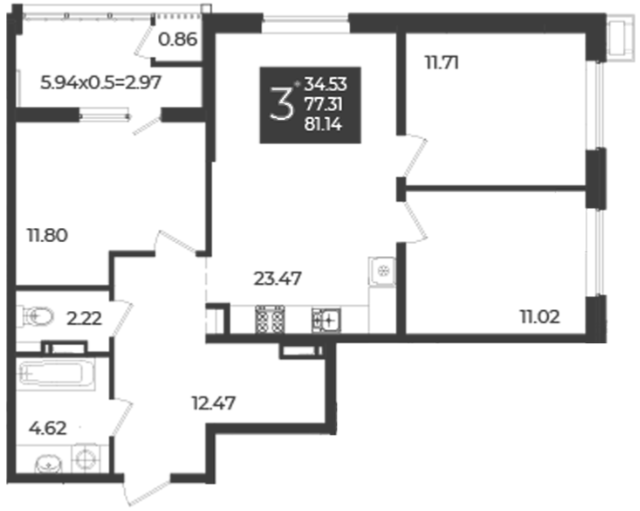
| 3 | 81.14 / 34.53 м² | от 12 009 770 руб. (148 013 руб./м²) | Планировка |
| Комнат | Площадь | Цена | Планировка | Дополнительно |
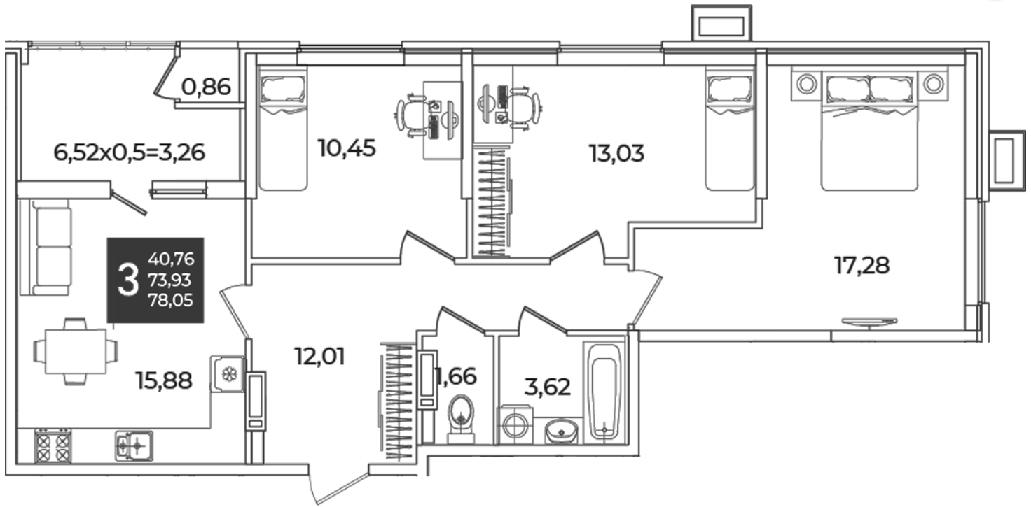
| 3 | 78.05 / 40.76 м² | от 11 605 000 руб. (148 687 руб./м²) | Планировка |
| Комнат | Площадь | Цена | Планировка | Дополнительно |
| студия | 25.60 / 8.77 м² | от 5 555 000 руб. (216 992 руб./м²) | Планировка | |
| 2 | 42.13 / 24.27 м² | от 8 184 650 руб. (194 271 руб./м²) | Планировка | |
| 2 | 46.41 / 25.94 м² | от 8 971 050 руб. (193 300 руб./м²) | Планировка | |
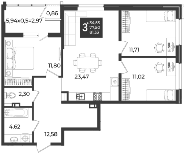
| 3 | 81.14 / 34.53 м² | от 12 164 250 руб. (149 917 руб./м²) | Планировка |
| Комнат | Площадь | Цена | Планировка | Дополнительно |
| студия | 22.25 / 10.29 м² | от 4 542 450 руб. (204 155 руб./м²) | Планировка | |
| студия | 25.48 / 8.77 м² | от 5 524 025 руб. (216 798 руб./м²) | Планировка | |
| 2 | 42.60 / 24.27 м² | от 8 037 000 руб. (188 662 руб./м²) | Планировка | |
| 2 | 46.16 / 25.94 м² | от 8 879 800 руб. (192 370 руб./м²) | Планировка | |
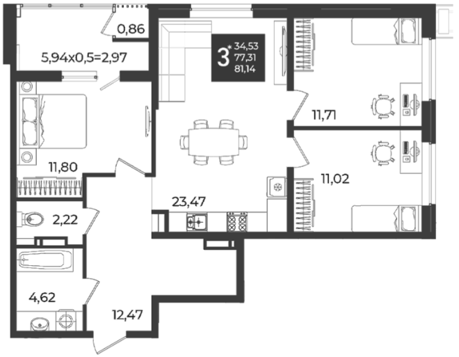
| 3 | 81.14 / 34.53 м² | от 11 812 800 руб. (145 585 руб./м²) | Планировка |
| Комнат | Площадь | Цена | Планировка | Дополнительно |
| 1 | 38.12 / 12.43 м² | от 6 442 280 руб. (169 000 руб./м²) | Планировка | |
| 2 | 59.03 / 24.14 м² | от 8 382 260 руб. (142 000 руб./м²) | Планировка |
| Комнат | Площадь | Цена | Планировка | Дополнительно |
| студия | 21.96 / 9.03 м² | от 4 194 360 руб. (191 000 руб./м²) | Планировка | |
| студия | 26.82 / 9.41 м² | от 4 586 220 руб. (171 000 руб./м²) | Планировка | |
| 1 | 38.12 / 11.74 м² | от 6 263 328 руб. (164 306 руб./м²) | Планировка | |
| 1 | 44.16 / 12.15 м² | от 6 856 080 руб. (155 255 руб./м²) | Планировка | |
| 2 | 56.12 / 24.67 м² | от 7 969 040 руб. (142 000 руб./м²) | Планировка |
| Комнат | Площадь | Цена | Планировка | Дополнительно |
| студия | 26.67 / 9.94 м² | от 4 600 575 руб. (172 500 руб./м²) | Планировка | |
| 1 | 36.92 / 11.56 м² | от 6 251 310 руб. (169 320 руб./м²) | Планировка | |
| 1 | 38.12 / 12.43 м² | от 6 514 950 руб. (170 906 руб./м²) | Планировка | |
| 1 | 39.34 / 10.22 м² | от 6 412 420 руб. (163 000 руб./м²) | Планировка | |
| 1 | 40.90 / 13.75 м² | от 6 666 700 руб. (163 000 руб./м²) | Планировка | |
| 1 | 41.5 / 13.7 м² | от 6 681 500 руб. (161 000 руб./м²) | Планировка | |
| 2 | 50.98 / 27.22 м² | от 7 596 020 руб. (149 000 руб./м²) | Планировка | |
| 2 | 53.76 / 23.03 м² | от 7 848 960 руб. (146 000 руб./м²) | Планировка | |
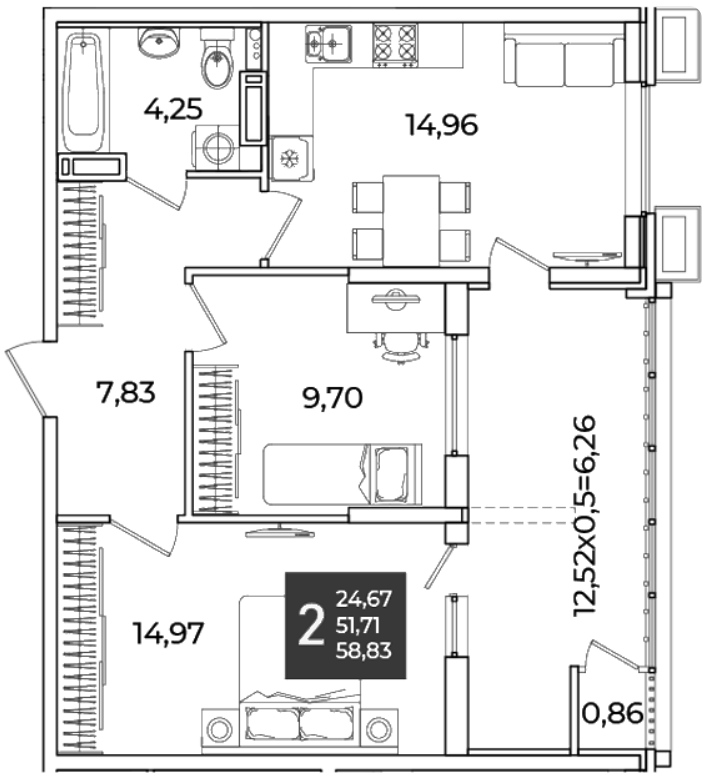
| 2 | 58.83 / 24.67 м² | от 8 706 840 руб. (148 000 руб./м²) | Планировка | |
| 2 | 59.03 / 24.14 м² | от 8 070 589 руб. (136 720 руб./м²) | Планировка |
| Комнат | Площадь | Цена | Планировка | Дополнительно |
| студия | 21.96 / 9.03 м² | от 3 797 718 руб. (172 938 руб./м²) | Планировка | |
| студия | 22.66 / 9.77 м² | от 4 482 292 руб. (197 806 руб./м²) | Планировка | |
| 1 | 36.79 / 11.56 м² | от 5 942 063 руб. (161 513 руб./м²) | Планировка | |
| 1 | 39.34 / 10.22 м² | от 5 739 588 руб. (145 897 руб./м²) | Планировка | |
| 1 | 41.50 / 13.70 м² | от 6 160 011 руб. (148 434 руб./м²) | Планировка | |
| 1 | 44.16 / 12.15 м² | от 6 179 132 руб. (139 926 руб./м²) | Планировка | |
| 2 | 50.98 / 27.22 м² | от 6 926 398 руб. (135 865 руб./м²) | Планировка | |
| 2 | 53.93 / 23.03 м² | от 7 738 416 руб. (143 490 руб./м²) | Планировка | |
| 2 | 59.03 / 24.14 м² | от 7 976 665 руб. (135 129 руб./м²) | Планировка | |
| 3 | 66.51 / 39.17 м² | от 8 464 196 руб. (127 262 руб./м²) | Планировка |
Микрорайон "Образцово" строится на территории 52 га в Прикубанском округе компанией ИНСИТИ. Проект включает в себя 18 зданий, возводимых по монолитно-кирпичной технологии, с этажностью от 18 до 21.
Планировка разной площади предусмотрена в комплексе: студии площадью от 31,45 квадратных метров, однокомнатные квартиры площадью от 39,84 квадратных метров и двухкомнатные площадью от 55,64 квадратных метров. В каждом подъезде размещены три лифта, включая два пассажирских и один грузовой METEOR Lift, бывший OTIS. На первых этажах зданий будут расположены коммерческие помещения, оформленные в едином стиле, где витражное остекление создает уникальную визуальную атмосферу фасадов.
В каждом подъезде будет выделена специальная зона для консьержей и обеспечено круглосуточное видеонаблюдение.
В рамках проекта комплекса предусмотрено строительство четырех детских садов : 3 на 350 мест каждый и 1 сад на 250 мест. Кроме того, здесь будет построена школа на 1 875 мест. Для удобства жителей предусмотрены четыре многоуровневых паркинга, также гостевые и подземные парковки. В комплексе построят поликлинику на 400 мест.
Рядом с комплексом располагается Парк «Флагманский» площадью 42 000 кв.м, где будут размещены амфитеатр для мероприятий и летний кинотеатр, детские эко-городки,шезлонги и гамаки, прогулочные аллеи.
В 2026 году будет завершено строительство всего района.
В некоторых литерах дворы построены на стилобатах в два уровня, где на первом этаже находится крытая парковка, а на втором этаже — закрытый двор, свободный от автомобилей. В ЖК предусмотрены игровые площадки из экологически чистых материалов, спортивное поле для футбола, волейбола и баскетбола, станции для зарядки телефонов и доступ к WI-FI.
Современные дворы и придомовые территории оборудованы:
Рядом с жилым комплексом расположены:
В пешей доступности находятся остановки общественного транспорта, что позволяет без проблем доехать в любую точку Краснодара.
Строительством данного жилого объекта занимается холдинг «Инсити», который работает в Краснодаре уже 12 лет. Застройщик за это время построил более 40 объектов жилой недвижимости, в том числе жилые комплексы и коттеджные поселки. В каждом из объектов реализуется специальная спортивная программа «Любимый спорт в твоем дворе», в рамках которой на придомовой территории строят площадки для игры в баскетбол, футбол, волейбол, тренажеры, беговые дорожки.
Среди сданных объектов ГК «Инсити»:
ЖК «Образцово» проект с собственной инфраструктурой по типу город в городе. Приобрести квартиры можно в рассрочку и в ипотеку.

Застройщик обманывает покупателей. Помещение для установки внешнего блока кондиционера (сплит рум) чудесным образом превратилось в холодную кладовую, которую посчитали по коэффициенту 1. При этом, в ДДУ такого помещения не было вовсе. А уже в тех паспорте - появилось. Помещение при этом без одной стены, на улицу ведет просто решетка. Конструкция не безопасная, хлипкая, через нее и холод и дождь и снег, все внутри. И вся эта радость по стоимости полного квадратного метра, аналогично жилой площади. Получается, что я купила у застройщика 1 кв метр помещения, которым даже пользоваться не смогу, просто чтобы блок кондиционера был спрятан, а не "портил" фасад дома.

как понять пользоваться не будете? сплит для вашей квартиры же установлен там, значит и платить за него вам. По моему в ЖК РФ на этот счет все четко прописано: для холодной кладовой коэффициент 1, так что никакого обмана

Мы получили недавно ключи от первого дома в ЖК Образцово. район вроде не плохой, перспективный. До этого жили в совсем другой части Краснодара, поэтому есть конечно сомнения. Но очень уж понравилась планировка двухкомнатной квартиры и проект микрорайона.

Интересный микрорайон будет, как обычно у Инсити. Дочке хотя б студию куплю, пока цены не взлетели окончательно.

Давно хотели с мужем поменять квартиру, хотелось что-то новое, с благоустроенной территорией. Увидели проект ЖК Образцово и решили купить квартиру в предчистовой отделке в первой очереди, в 18-м доме. Пока только ждем ключи, но не думаю, что задержат выдачу. За этим застройщиком такого не замечено.

Увидели старт продаж летом и сразу заинтересовались. Здесь современные дома, закрытая территория, зелёные зоны и площадки для детей. Район подходит для семей, всё рядом: школа, магазины, детские кружки. Локация просто супер, очень ждём сдачи!

Местоположение этого ЖК действительно привлекло — здесь как будто маленький городок в городе. Вся инфраструктура рядом: магазины, кафе, детские площадки. Планируют построить большой парк с зонами для барбекю и летним кинотеатром — будет супер, если все это реализуют.

Дети перебрались в Краснодар. Мы хотели, чтобы они купили частный дом в пригороде, а они остановились на квартире в ЖК Образцово. Мне понравился. Хороший современный комплекс. Инфраструктура рядом, и собственная думаю тоже появится.

Не зря я так долго не решалась на покупку квартиры. Потому что как только стартовали продажи в Образцово, я пришла в офис Инсити. Я уже много читала о микрорайоне и о квартирах в нем, но хотелось все увидеть своими глазами. А после взяла время на подумать. Все таки хочу брать здесь — нравится всё.

Взяли квартиру в ЖК образцово. Я давно присматривалась к Инсити и хотела квартиру только их. И вот появился микрорайон, который нам по всем параметрам подходит.

Подписала договор на покупку студии в Образцово. Оч понравилась планировка, просто идеально для меня. Да и придомовая территория чистый кайф - зелень, беседки, детская площадка… Жду не дождусь, когда смогу переехать и наслаждаться всеми прелестями нового дома!

Ситуация такая, мне нужно было внести 20 тыс руб ., за бронь квартиры , в случае отказа ипотеки, или снижение суммы по ипотеки ,деньги должны были вернуть. Меня так уверял застройщик ))по итогу , банк снизил сумму, соответственно условия мне не подошли условия , в итоге застройщик мне хочет вернуть 10 тыс так как якобы условия выполнены на половину , какие именно условия я так и поняла , получается что, застройщик при заключении брони вводит в заблуждение , а люди простые просто ведутся на добром слове!

Современный проект, красивые дома, парк, разобраться бы с пробками, было бы идеально.

По мне так в условиях пандемии, жильцы первых этажей в большей безопасности чем жильцы с третьего этажа и выше. Получается вирус активен несколько часов с попадания в воздух. В лифте утром и вечером ездят, все..... Большинство без масок. В доме за два года пандемии,обработали лифт всего 6 ть раз. Получается, первый этаж безопаснее.

На проекте дом красивый. Отзывы у застройщика тоже не плохие. Но почему балконы с панорамой только с 7 этажа? У меня жена высоты боится, хотим 2 или максимум 3 этаж, но с панорамой.
Застройщик обманывает покупателей. Помещение для установки внешнего блока кондиционера (сплит рум) чудесным образом превратилось в холодную кладовую, которую посчитали по коэффициенту 1. При этом, в ДДУ такого помещения не было вовсе. А уже в тех паспорте - появилось. Помещение при этом без одной стены, на улицу ведет просто решетка. Конструкция не безопасная, хлипкая, через нее и холод и дождь и снег, все внутри. И вся эта радость по стоимости полного квадратного метра, аналогично жилой площади. Получается, что я купила у застройщика 1 кв метр помещения, которым даже пользоваться не смогу, просто чтобы блок кондиционера был спрятан, а не \"портил\" фасад дома.